Our Services

We can expertly tailor our services based on your unique requirements. We are dedicated to providing an extensive array of coordination services designed to meet your needs as well as the specific demands of each individual project. Below, you will find information on just a few of the services we offer to help you achieve your objectives.

3D Coordination:

3D model coordination plays a crucial role in the construction process by enabling the accurate coordination and identification of potential clashes and conflicts between various 3D models from all disciplines, including Mechanical, Electrical, and Plumbing (MEP), structural, and architectural sectors.

Clash Detection:

Utilizing 3D clash detection is a highly effective strategy that helps significantly minimize rework by identifying and fixing design conflicts early in the planning stages. This proactive approach allows you to tackle potential problems and conflicts before construction begins, leading to a much smoother and more efficient building process overall. By addressing issues upfront, you can ensure that the project moves forward seamlessly, ultimately saving time and costs while enhancing collaboration among project teams.

Spool Drawings:

Our accurate pipe spool drawings make it easier to optimize your piping systems. We ensure precision and effectiveness in your piping projects by offering comprehensive fabrication and installation documentation.

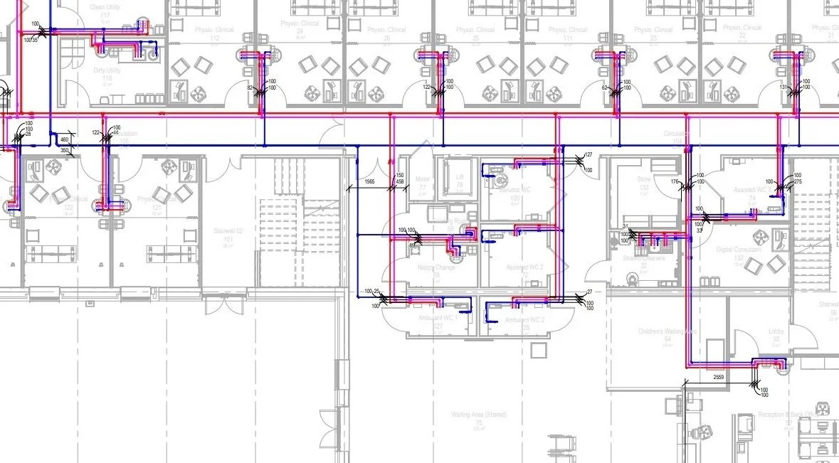
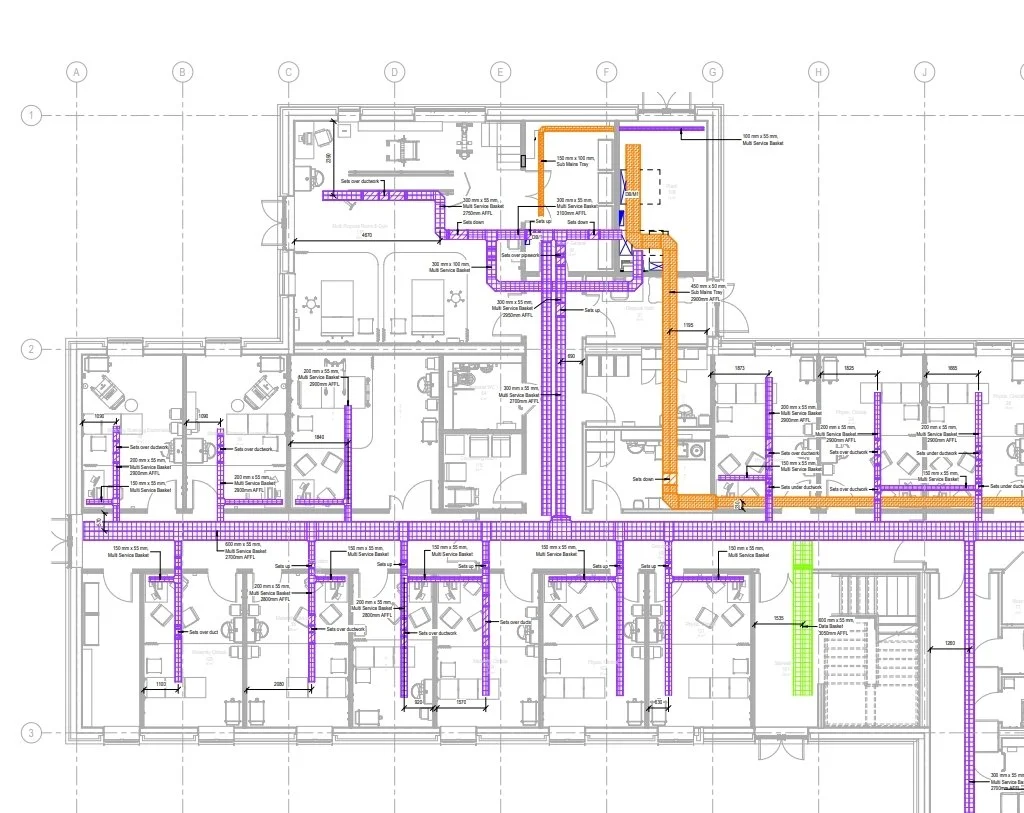
MEP Installation Drawings:

Detailed installation drawings function as an essential roadmap for the installation of mechanical, electrical, and plumbing systems. From corporate office buildings to expansive industrial facilities, MEP Plans in Construction serve as an indispensable piece of the overall project puzzle. We will provide these comprehensive drawings throughout your project, diligently keeping up with all changes and modifications, right through to delivering accurate As Built drawings at the project's close.

Get in touch today

Get in touch